2476 Square Feet Double Floor Contemporary Home Design

2476 Square Feet Double Floor Contemporary Home Design
General Details
Total Area : 2476 Square Feet
Total Bedrooms : 4
Type : Double Floor
Style : Contemporary

2476 Square Feet Double Floor Contemporary Home Design2476 Square Feet Double Floor Contemporary Home Design

Specifications

Ground Floor is designed in 1664 Square Feet
Number of Bedrooms : 2
Bathroom Attached : 2
Living Room
Dining Room
Sit out
Car Porch
Kitchen
Work Area
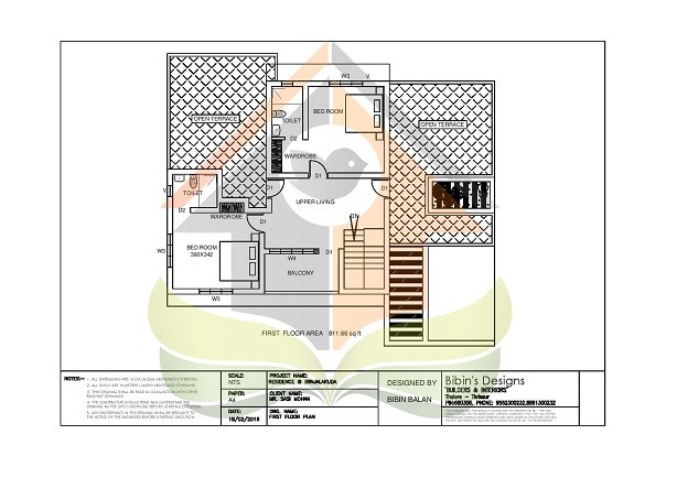
First Floor is designed in 812 Square Feet
Number of Bedrooms : 2
Bathroom Attached : 2
Upper Living
Open Terrace
Balcony

FOR MORE KERALA HOME DESIGNS
bibin-balan, residenza designs, 9562300232
2476 Square Feet Double Floor Contemporary Home Design
Apart from our gratification, we have cratered the dreams of lot of people who are in fond of home designs and interior works. With all the credits to our crew members whoever had committed their immense work towards the new home design project “2476 Square Feet Double Floor Contemporary Home Design” to furnish up a masterpiece among the series, we first of all, introduce the new home design with a number of 4 bedrooms along with the combination of attached bathrooms and a common toilet. According to the designer, the design is well specified with the latest interior home designs which are mostly applied over the living and dining rooms to enrich the look of the beauty of the home design and also over the spacious kitchen which almost provide the entire home design more impressive.

Leave a Reply

Your email address will not be published. Required fields are marked *

two × five =