
General Details
Total Area : 3520 Square Feet
Total Bedrooms : 6
Type : Double Floor
Style : Contemporary

Specifications
Ground Floor is designed in 2645 Square Feet
Number of Bedrooms : 3
Bathroom Attached : 2
Living Room
Family Living
Dining Room
Sit out
Study Area
Car Porch
Kitchen : 2
Store Area

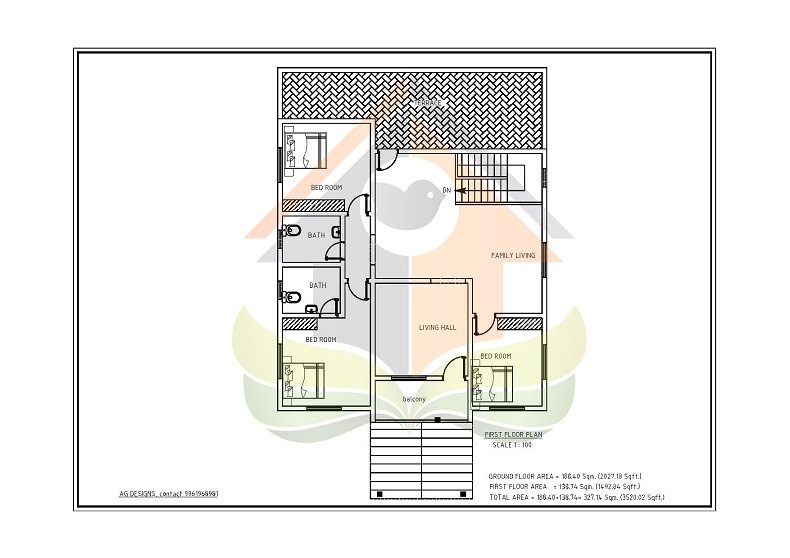
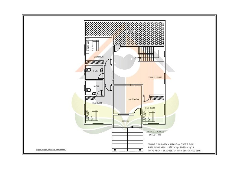
First Floor is designed in 1492 Square Feet
Number of Bedrooms : 3
Bathroom Attached : 2
Upper Living
Home Theater
Balcony
FOR MORE KERALA HOME DESIGNS

3520 Square Feet Double Floor Budget Villa Home Design
Apart from our gratification, we have cratered the dreams of lot of people who are in fond of home designs and interior works. With all the credits to our crew members whoever had committed their immense work towards the new home design project “3520 Square Feet Double Floor Budget Villa Home Design” to furnish up a masterpiece among the series, we first of all, introduce the new home design with a number of 6 bedrooms along with the combination of attached bathrooms and a common toilet. According to the designer, the design is well specified with the latest interior home designs which are mostly applied over the living and dining rooms to enrich the look of the beauty of the home design and also over the spacious kitchen which almost provide the entire home design more impressive.
